PLAN
ELEVATION 立面図


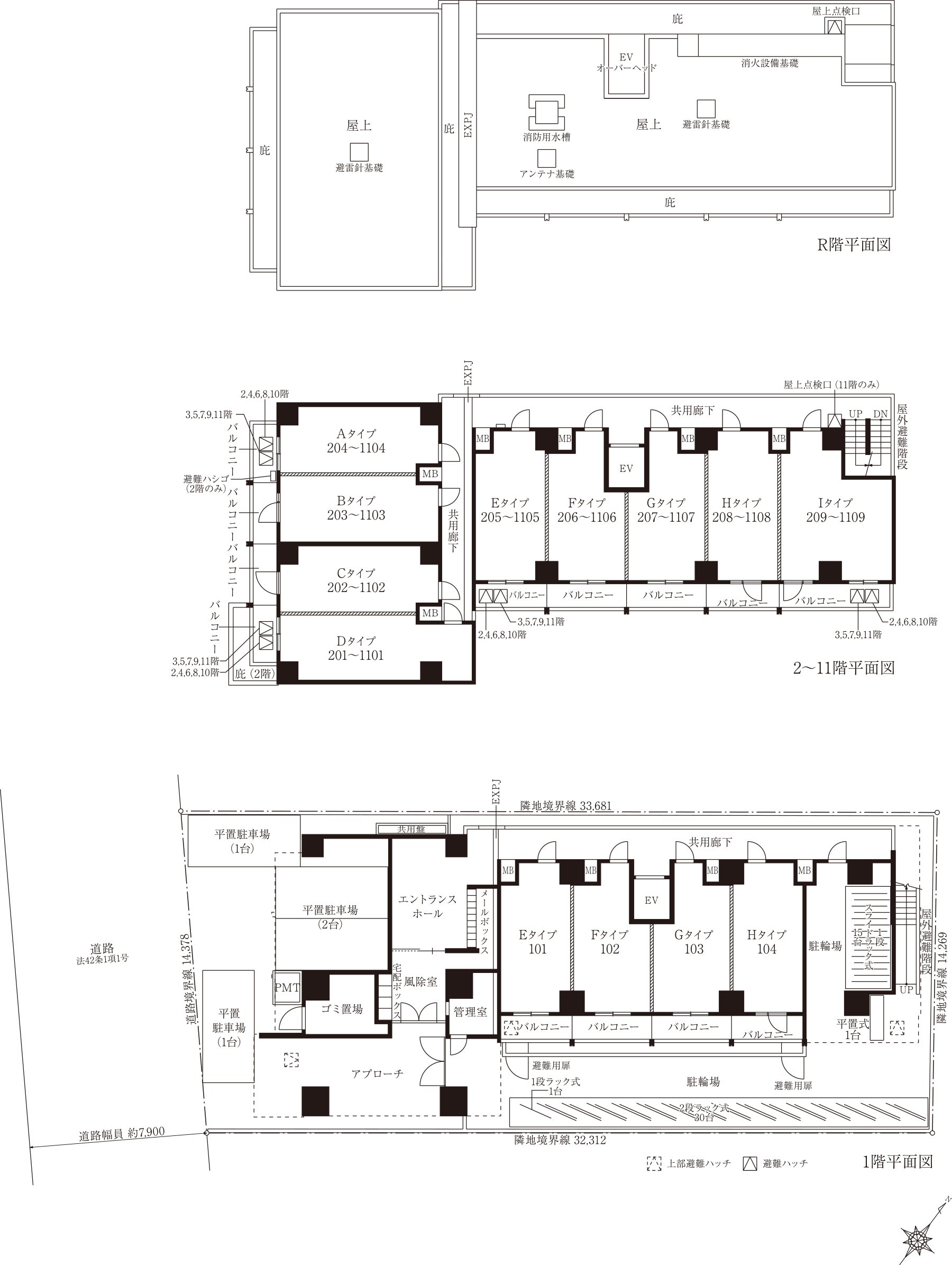
FLOOR PLAN 平面図

ROOM PLAN 間取図
図面集をご覧になるにあたって
- 図面に掲載されている寸法の単位は㎜です。
- 方位、縮尺はトレース、製版などの関係上多少の誤差があります。
- 行政指導及び設計・施工の都合上により多少の変更が生じる場合がありますので予めご了承ください。
- 図面との差異がある場合、現状を優先させていただきます。
- 専有面積にはMB(メーターボックス)、PS(パイプスペース)面積が含まれています。登記上の内法計算による面積は、専有面積より小さくなります。
- 図面表示の少数点3桁以下は切り捨てになっています。
- バルコニーの避難用ハッチ等の位置は、消防署等監督官庁の指導により変更する場合がありますのでご了承ください。
- 各室の帖数表示は壁芯計算による面積を1.62㎡(約1帖分)で割ったものです。
- 各階平面図のMB表示にはPSを含んでいます。各居室の帖数(○○帖)は小数点第二位以下を切り捨て表記しております。
- 近隣住民等の協議により目隠しガラス等が設置される可能性があります。









